Quadrilocale in vendita

Bologna, Via del porto
€ 360.000
4 locali 4 locali
100 Mq 100 Mq
1 bagno 1 bagno

Quadrilocale in vendita

Bologna, Via del porto

Descrizione annuncio

Quadrilocale luminoso in vendita – Via del Porto 40, Bologna (Centro/Porto)

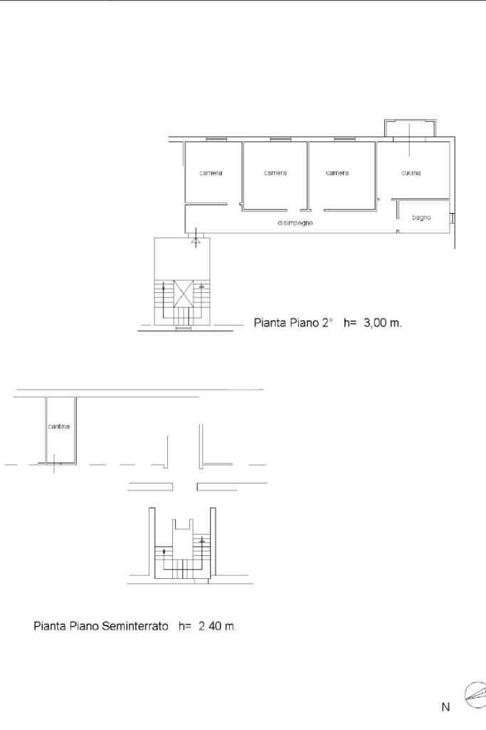
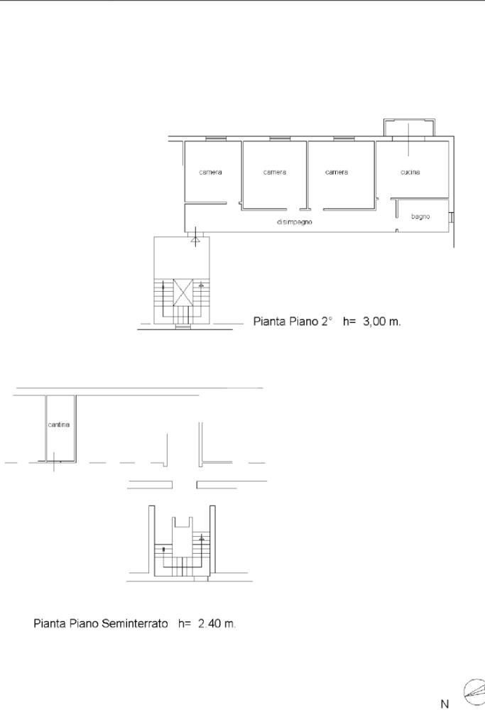
Proponiamo in vendita quadrilocale di circa 100 mq situato in via del Porto 40, in zona centrale a Bologna, in posizione strategica tra la stazione e il centro storico.

L’immobile si trova in un contesto comodo a tutti i servizi, a pochi minuti a piedi da Piazza Maggiore, dalle principali vie dello shopping, dalle sedi universitarie e da luoghi d’interesse come il MAMbo – Museo d’Arte Moderna. La zona è ben servita da mezzi pubblici, attività commerciali, supermercati e parcheggi, risultando ideale sia per famiglie sia per investimento.

L’appartamento,interno rispetto alla via principale, risulta particolarmente silenzioso e riservato, si sviluppa su una superficie di circa 100 mq ed è composto da soggiorno luminoso, cucina abitabile separata, tre camere da letto di generose dimensioni, bagno finestrato, balcone e cantina di la proprietà la possibilità di usufruire di un posto auto non assegnato all’interno dell’area condominiale.

Gli ambienti sono ben distribuiti e godono di ottima luminosità grazie alle ampie finestre e alla buona esposizione. La metratura e la disposizione interna permettono diverse soluzioni di riorganizzazione degli spazi.

Presente la possibilità di frazionamento in due unità abitative, caratteristica che rende l’immobile particolarmente interessante anche per chi è alla ricerca di un investimento in una delle zone più richieste della città.

Soluzione adatta a chi desidera vivere in centro con spazi comodi oppure a chi cerca un immobile da valorizzare in posizione centrale e strategica.

PER INFORMAZIONI O PER FISSARE UNA VISITA NON ESITARE A CHIAMARE IL NUMERO: 051/4071883.

Mostra tutto

Nelle vicinanze

Trasporto pubblico Trasporto pubblico
stazione di Bologna Centrale
stazione di Bologna Centrale
630 m
Bologna AV
Bologna AV
690 m
Piazza dei Martiri
Piazza dei Martiri
150 m
Don Minzoni
Don Minzoni
160 m
stazione di Bologna San Vitale
stazione di Bologna San Vitale
2,9 Km
Ricariche auto elettriche Ricariche auto elettriche
Bologna Piazza dei Martiri | EnelX
180 m
Be Charge
400 m
Eneldrive Santa Maria Delle Visitazione al ponte delle Lame
440 m
Eneldrive Bologna Centrale FS
490 m
Bologna Righi | EnelX
660 m
Scuole Scuole
Dipartimento di Filosofia e Comunicazione
110 m
Università di Bologna - DAMSLab - Dipartimento delle Arti
230 m
Scuole
430 m
The bernstein school of musical theatre
560 m
H. C. Andersen
810 m
Farmacia Farmacia
Parafarmacia Alkemia
340 m
Mille
420 m
Farmacia Porta Lame
470 m
Porta Lame
490 m
San Benedetto
520 m
Ospedali Ospedali
CUP Metropolitano
340 m
Ospedali
480 m
Ospedale Militare
500 m
Roncati
1,2 Km
Villa Torri
1,7 Km
Supermercati Supermercati
Coop
210 m
Mercato Ritrovato
250 m
Pam
310 m
Aldi
310 m
Carrefour Express
340 m
Negozi Negozi
Il Mercato Ritrovato a Domicilio
230 m
Sonar Bangla
300 m
Pionti Orto
350 m
Lo Sfizio Di Krizia Vergnani
350 m
Il Forno di Via Lame
350 m
Bar Bar
Bar Carlo
250 m
Marconi (?)
270 m
Bellini
270 m
L'Una
270 m
Parigi
290 m
Ristoranti Ristoranti
Pizzeria Pirata del Porto
10 m
Gustopiano
140 m
Ein Prosit
140 m
Pizzeria la Verace
190 m
Zenzero
200 m
Mostra tutto

Caratteristiche

Rif.:
61179539
Piano:
2 (Piano medio)
Posti auto:
1
Balconi:
1
Camere da letto:
3
Arredamento:
Parziale
Mostra tutto
Prezzo Prezzo
€ 360.000
Rata mutuo Rata mutuo
€ 1.717 / mese
Spese annue Spese annue
€ 800
Proponi il tuo prezzoProponi il tuo prezzo

Classe Energetica

F
F
F
F
F
F
F
F
F
EP globale non rinnovabile:
291.13 kW h/m² anno
EP globale rinnovabile:
291.13 kW h/m² anno
EP invernale del fabbricato:
EP estiva del fabbricato:
Anno di costruzione:
1950
Riscaldamento:
Autonomo
Tipo impianto:
A radiatori
Tipo alimentazione:
Metano

Ti interessa visionare l'immobile?

Fissa un appuntamento  Fissa un appuntamento

Richiedi informazioni

Clicca su Leggi per aprire l'informativa
* Questi campi sono obbligatori

Calcola il tuo mutuo

Semplice e senza impegno
Anticipo

( % )
Mutuo

( % )

pochi semplici passi

inserisci i tuoi dati
Questionario completato
Grazie per aver richiesto un appuntamento senza impegno con un nostro Consulente del Credito e Assicurativo.

Hai inserito correttamente tutti i dati necessari e a breve riceverai una e-mail con un link da convalidare per inviare i tuoi dati.
Affiliato
Studio Santa Rita Srl
Via Massarenti, 193/C 40138 Bologna (BO)

Il nostro staff


  • Marta Brunetti
    Coordinatrice

  • Manuel Sorgente
    Collaboratore

  • Pino Tavernise
    Collaboratore

  • Salvatore Tavernise
    Affiliato
Via Massarenti, 193/C 40138 Bologna (BO)
Zona: Bologna-Santa Rita-San Vitale-Massarenti-Larga-Martelli
Mostra su mappa
Orari: Dal lunedì al venerdì 9:00 - 13:00 ; 15:00 - 20:00; sabato 9:00 - 13:00
Affiliato
Studio Santa Rita Srl
Via Massarenti, 193/C 40138 Bologna (BO)

2026 Tecnocasa Franchising S.p.A. - P. IVA 08365160152 - Via Monte Bianco 60/A 20089 Rozzano (MI). Ogni agenzia ha un proprio titolare ed è autonoma. Privacy policy | Policy utilizzo | Cookie policy