Deposito in vendita

Bologna, Via Filippo Antolini
€ 105.000
70 Mq 70 Mq

Deposito in vendita

Bologna, Via Filippo Antolini

Descrizione annuncio

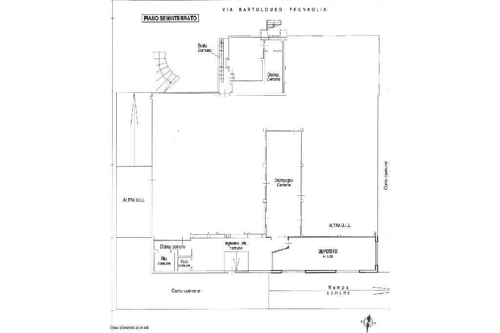
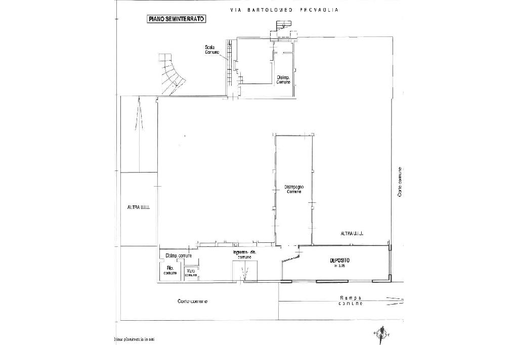
DEPOSITO- VIA FILIPPO ANTOLINI

PROPONIAMO IN VENDITA AMPIO LOCALE COMMERCIALE CON CATEGORIA CATASTALE C/2 DI 70MQ, SITUATO ALL'INTERNO DI UNO STABILE RISERVATO E BEN TENUTO CHE OSPITA ALTRI DEPOSITI E SPAZI ARTIGIANALI. LA STRUTTURA SI TROVA IN UNA ZONA STRATEGICA FACILMENTE RAGGIUNGIBILE E BEN COLLEGATA ALLE PRINCIPALI ARTERIE STRADALI.

INOLTRE UNA CARATTERISTICA MOLTO INTERESSANTE DELLO STABILE E' LA POSSIBILITA' DI UNIFICARE DUE O PIU' UNITA': I MURI DIVISORI INTERNI NON SONO PORTANTI DI CONSEGUENZA POSSONO ESSERE ABBATTUTI SENZA PROBLEMI STRUTTURALI. QUESTA FLESSIBILITA' PERMETTE NON SOLO DI UNIRE DUE O PIU' LOCALI IN UNICO SPAZIO PIU' AMPIO MA DI MODULARE GLI SPAZI AUMENTANDO IL VALORE E LA FUNZIONALITA' DELL'INVESTIMENTO.

PER INFORMAZIONI O PER FISSARE UNA VISITA NON ESITARE A CONTATTARCI AL NUMERO: 0514071883.

Mostra tutto

Nelle vicinanze

Trasporto pubblico Trasporto pubblico
Bologna Roveri
Bologna Roveri
980 m
Bologna Mazzini
Bologna Mazzini
2,3 Km
Piazza Dei Colori
Piazza Dei Colori
140 m
Barelli
Barelli
200 m
Bologna Via Larga
Bologna Via Larga
420 m
Ricariche auto elettriche Ricariche auto elettriche
Eneldrive Fast EVA+ Nordiconad Vialarga
500 m
Bologna Via Larga | EnelX
670 m
Best Western Plus Tower
750 m
Bologna Fonditore Taxi | EnelX
1,0 Km
Aspiag Interspar Bologna
1,1 Km
Scuole Scuole
Scuole
550 m
IIS Manfredi Tanari
1,1 Km
Scuola Media Luigi Carlo Farini
1,2 Km
Istituto Comprensivo n. 12
1,2 Km
Scuola Elementare
1,3 Km
Farmacia Farmacia
Parafarmacia Conad
580 m
Mia
610 m
San Pietro
640 m
Santa Rita
1,2 Km
Farmacia Lloyds del Pilastro
1,6 Km
Ospedali Ospedali
Infermeria
460 m
Pubblica Assistenza Città di Bologna
1,1 Km
Ospedali
2,0 Km
Villa Laura
2,1 Km
Istituto Sant'Anna
2,4 Km
Supermercati Supermercati
Supermercati
570 m
Conad
580 m
Lidl
870 m
Esselunga San Vitale
890 m
Interspar
1,2 Km
Negozi Negozi
OVS
460 m
Intimissimi
480 m
Calzedonia
500 m
Carrera Jeans
520 m
Particolari
520 m
Bar Bar
Il Gelato
460 m
Camst
480 m
Giostrà
690 m
Le Torri Bar Tabaccheria
700 m
Bar
710 m
Ristoranti Ristoranti
Totò e Peppino
240 m
Garden Club
450 m
Self Service
470 m
Pizza Bar La Pantera Rosa
810 m
Trattoria La Sosta
820 m
Mostra tutto

Caratteristiche

Rif.:
61126851
Piano:
Seminterrato di 2
Totale piani:
2
Condizionamento:
Autonomo
Ascensore:
No
Riscaldamento:
Autonomo
Mostra tutto
Prezzo Prezzo
€ 105.000
Rata mutuo Rata mutuo
€ 488 / mese
Spese annue Spese annue
€ 0
Proponi il tuo prezzoProponi il tuo prezzo

Classe Energetica

E
E
E
E
E
E
E
E
E
EP globale non rinnovabile:
201.02 kW h/m² anno
EP globale rinnovabile:
201.02 kW h/m² anno
EP invernale del fabbricato:
EP estiva del fabbricato:
Anno di costruzione:
1980
Riscaldamento:
Autonomo
Tipo impianto:
Ad aria
Tipo alimentazione:
Aria

Ti interessa visionare l'immobile?

Fissa un appuntamento  Fissa un appuntamento

Richiedi informazioni

Clicca su Leggi per aprire l'informativa
* Questi campi sono obbligatori

Calcola il tuo mutuo

Semplice e senza impegno
Anticipo

( % )
Mutuo

( % )

pochi semplici passi

inserisci i tuoi dati
Questionario completato
Grazie per aver richiesto un appuntamento senza impegno con un nostro Consulente del Credito e Assicurativo.

Hai inserito correttamente tutti i dati necessari e a breve riceverai una e-mail con un link da convalidare per inviare i tuoi dati.
Affiliato
Studio Santa Rita Srl
Via Massarenti, 193/C 40138 Bologna (BO)

Il nostro staff


  • Marta Brunetti
    Coordinatrice

  • Manuel Sorgente
    Collaboratore

  • Pino Tavernise
    Collaboratore

  • Salvatore Tavernise
    Affiliato
Via Massarenti, 193/C 40138 Bologna (BO)
Zona: Bologna-Santa Rita-San Vitale-Massarenti-Larga-Martelli
Mostra su mappa
Orari: Dal lunedì al venerdì 9:00 - 13:00 ; 15:00 - 20:00; sabato 9:00 - 13:00
Affiliato
Studio Santa Rita Srl
Via Massarenti, 193/C 40138 Bologna (BO)

2026 Tecnocasa Franchising S.p.A. - P. IVA 08365160152 - Via Monte Bianco 60/A 20089 Rozzano (MI). Ogni agenzia ha un proprio titolare ed è autonoma. Privacy policy | Policy utilizzo | Cookie policy