Negozio in vendita

Bologna, Via Saragozza
€ 250.000
4 locali 4 locali
100 Mq 100 Mq
1 bagno 1 bagno

Negozio in vendita

Bologna, Via Saragozza

Descrizione annuncio

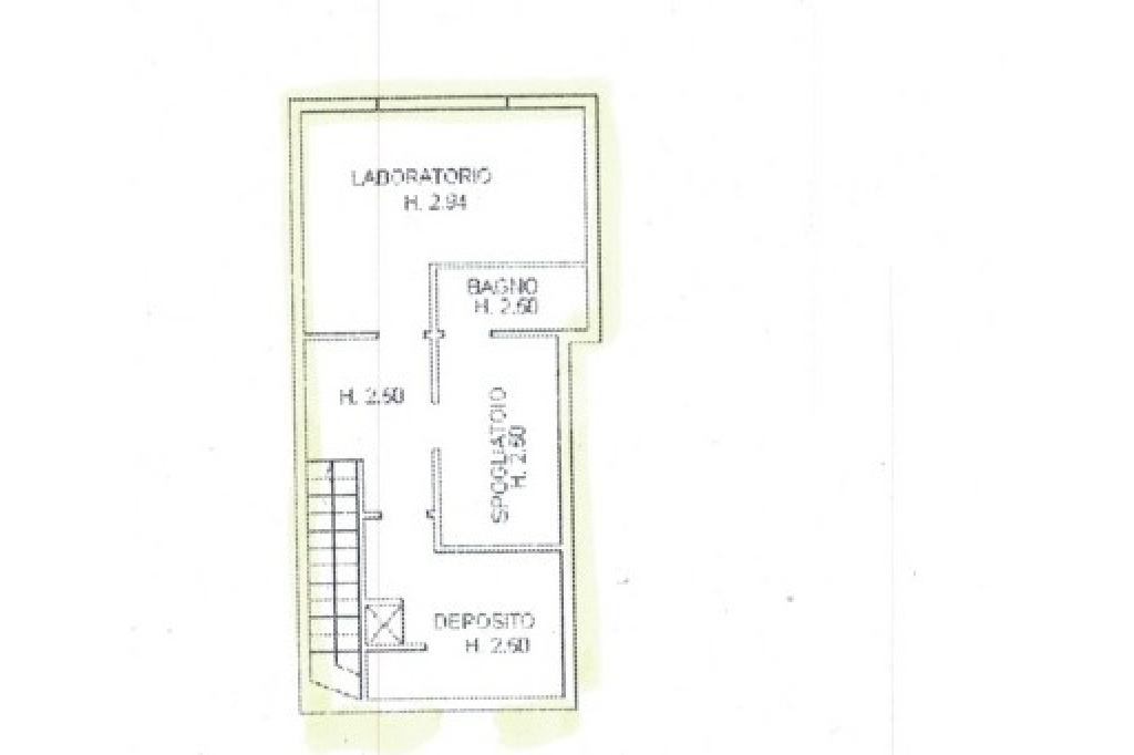
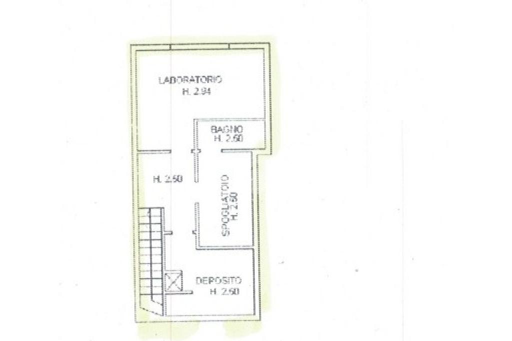
LOCALE COMMERCIALE-SARAGOZZA

PROPONIAMO IN VENDITA LE MURA DI UN IMMOBILE COMMERCIALE DI 100 MQ ATTUALMENTE ADIBITO A RISTORANTE AVVIATISSIMO E MOLTO CONOSCIUTO, SITUATO IN UNA DELLE ZONE PIU' AFFASCINANTI E FREQUENTATE DI BOLOGNA, CARATTERIZZATA DA UN FORTE PASSAGGIO PEDONALE, ELEVATA VISIBILITA' E CONTESTO SIGNORILE.

Il locale si trova in Saragozza, quartiere elegante e di grande passaggio sia pedonale che veicolare, a due passi dalla storica salita per San Luca che garantisce flussi turistici costanti e una clientela variegata tra residenti, sportivi, turisti e professionisti.

La superficie interna di 100mq comprende la sala, il bagno a norma per il pubblico, la cucina attrezzata e funzionale, al piano superiore lo spogliatoio per il personale, un altro locale e un piccolo magazzino. L'area tavoli esterna sotto il portico storico rappresenta un valore aggiunto fondamentale, offrendo riparo naturale e atmosfera tipicamente bolognese, senza necessità di strutture fisse o coperture aggiuntive. Ideale per chi desidera offrire un servizio all'aperto durante tutto l'anno, sfruttando la bellezza e la funzionalità dell'architettura storica della zona.

OTTIMA RENDITA ATTUALMENTE LOCATO A 1.800 MENSILI.

MURA DEL RISTORANTE IN VENDITA AL PREZZO DI 250.000

ATTIVITA' COMMERCIALE IN VENDITA CON UN'AGGIUNTA DI 100.000

SI TRATTA DI UN'OPPORTUNITA' IDEALE PER CHI DESIDERA INVESTIRE NEL SETTORE DELLA RISTORAZIONE, CON LA POSSIBILITA' DI ACQUISIRE SIA L'IMMOBILE CHE L'ATTIVITA' GIA AVVIATA.

PER INFORMAZIONI O PER FISSARE UNA VISITA NON ESITARE A CONTATTARCI AL NUMERO: 0514071883

Mostra tutto

Nelle vicinanze

Trasporto pubblico Trasporto pubblico
Meloncello
Meloncello
20 m
Bandiera
Bandiera
70 m
Ricariche auto elettriche Ricariche auto elettriche
Bologna Irma Bandiera | HERA
90 m
Eneldrive Stadio Renato Dall'Ara
210 m
Bologna Andrea Costa | EnelX
540 m
Cimitero Monumentale di Bologna | EnelX
1,0 Km
Universita' di Bologna | EnelX
1,3 Km
Scuole Scuole
Scuole
150 m
Maria Ausiliatrice
530 m
Luigi Bombicci
770 m
Scuola elementare Luigi Bombicci
770 m
Ada Gobetti Marchesini
810 m
Farmacia Farmacia
Mia
80 m
Immacolata
330 m
Comunale
350 m
Bertelli
580 m
Farmacia Stadio
800 m
Ospedali Ospedali
Roncati
1,5 Km
Ospedale Maggiore "Carlo Alberto Pizzardi" Accesso Principale
1,6 Km
CUP - Centro Unico Prenotazione Ospedale Maggiore
1,7 Km
Ospedale Maggiore "Carlo Alberto Pizzardi"
1,7 Km
Croce Rossa Italiana - Comitato di Bologna
1,7 Km
Supermercati Supermercati
Coop
400 m
Carrefour Express
610 m
Despar
1,1 Km
Carrefour
1,2 Km
IN'S Mercato
1,3 Km
Negozi Negozi
Fabian Gioielli
410 m
minimarket
410 m
pane
420 m
Briciole golose
550 m
NaturaSì
570 m
Bar Bar
Bar Stadio
550 m
Oliviero
820 m
Bar Celeste
830 m
Bar Pasticceria Venezia
930 m
Bar Asso
1,1 Km
Ristoranti Ristoranti
Trattoria Meloncello
70 m
Pizzeria Il Meloncello
300 m
San Gennaro
420 m
Pizza 90
460 m
Miyabi
480 m
Mostra tutto

Caratteristiche

Rif.:
61120032
Piano:
1 di 4 (Piano su più livelli)
Condizionamento:
Autonomo
Ascensore:
No
Riscaldamento:
Autonomo
Libero:
Mostra tutto
Prezzo Prezzo
€ 250.000
Rata mutuo Rata mutuo
€ 1.165 / mese
Proponi il tuo prezzoProponi il tuo prezzo

Altre caratteristiche

Descrizione dei locali
Bagno Cieco

Classe Energetica

F
F
F
F
F
F
F
F
F
EP globale non rinnovabile:
252.12 kW h/m² anno
EP globale rinnovabile:
252.12 kW h/m² anno
EP invernale del fabbricato:
EP estiva del fabbricato:
Anno di costruzione:
1900
Riscaldamento:
Autonomo
Tipo impianto:
A radiatori
Tipo alimentazione:
Metano

Ti interessa visionare l'immobile?

Fissa un appuntamento  Fissa un appuntamento

Richiedi informazioni

* Questi campi sono obbligatori

Calcola il tuo mutuo

Semplice e senza impegno
Anticipo

( % )
Mutuo

( % )

pochi semplici passi

inserisci i tuoi dati
Questionario completato
Grazie per aver richiesto un appuntamento senza impegno con un nostro Consulente del Credito e Assicurativo.

Hai inserito correttamente tutti i dati necessari e a breve riceverai una e-mail con un link da convalidare per inviare i tuoi dati.
Affiliato
Studio Santa Rita Srl
Via Massarenti, 193/C 40138 Bologna (BO)

Il nostro staff


  • Manuel Sorgente
    Collaboratore

  • Salvatore Tavernise
    Affiliato
Via Massarenti, 193/C 40138 Bologna (BO)
Zona: Bologna-Santa Rita-San Vitale-Massarenti-Larga-Martelli
Mostra su mappa
Orari: Dal lunedì al venerdì 9:00 - 13:00 ; 15:00 - 20:00; sabato 9:00 - 13:00
Affiliato
Studio Santa Rita Srl
Via Massarenti, 193/C 40138 Bologna (BO)

2025 Tecnocasa Franchising S.p.A. - P. IVA 08365160152 - Via Monte Bianco 60/A 20089 Rozzano (MI). Ogni agenzia ha un proprio titolare ed è autonoma. Privacy policy | Policy utilizzo | Cookie policy