Casa indipendente in vendita

Bologna, Via degli stradelli Guelfi
€ 645.000
Prezzo aggiornato
12 locali 12 locali
300 Mq 300 Mq
3 bagni 3 bagni

Casa indipendente in vendita

Bologna, Via degli stradelli Guelfi

Descrizione annuncio

Casa indipendente immersa nel verde – Privacy assoluta a pochi minuti dalla città

In posizione strategica, immersa nella quiete della campagna e circondata dal verde, proponiamo importante proprietà indipendente ideale per chi desidera vivere lontano da smog, rumori e vicini, senza rinunciare alla comodità dei servizi: il primo centro urbano dista infatti solo 2,5 km.

La proprietà si distingue per ampiezza, privacy e straordinaria versatilità, risultando perfetta sia come residenza privata, sia come investimento o progetto di frazionamento in più unità abitative indipendenti.

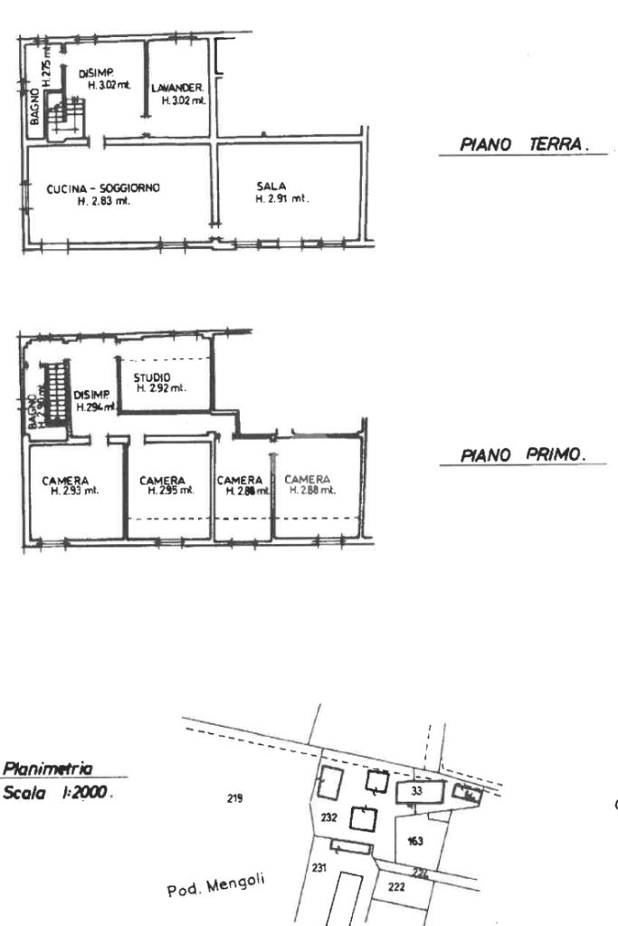
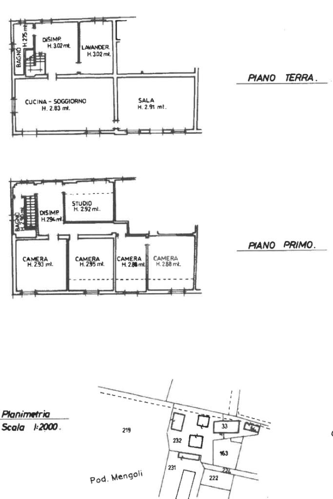
Composizione dell’immobile

L’unità principale, quella più grande, si sviluppa su 231 mq e offre ambienti generosi e luminosi: Sala di rappresentanza di grandi dimensioni cucina abitabile con soggiorno / doppia zona living,5 camere da letto

Lavanderia di circa 15 mq, facilmente trasformabile in ulteriore stanza o studio

Adiacente troviamo un secondo appartamento indipendente di circa 68 mq, composto da:Cucina con soggiorno e 2 camere da letto

Completano la proprietà due piccoli fabbricati adiacenti all'unità immobiliare: Rimessa di circa 100 mq

Magazzino su due livelli, per un totale di 145 mq per piano.

Giardino circostante di proprietà di circa 2.400 mq, completamente sfruttabile, ideale per relax, piscina, orto o spazi verdi dedicati a ciascuna unità

Potenzialità e progetto:

Grazie alla metratura complessiva e alla disposizione degli edifici, l’immobile si presta perfettamente a un progetto di frazionamento, con la possibilità di realizzare più unità abitative autonome, ciascuna con ingressi indipendenti, giardino e pertinenze, rendendolo ideale per:

Più nuclei familiari

Soluzioni genitori/figli

Attività ricettive o residenze di pregio

Investitori

Perché sceglierla:

Contesto silenzioso e riservato

Nessun smog, immersa nella natura

Ottimo collegamento con la città

Ampie metrature interne ed esterne

Massima flessibilità d’uso

Una soluzione unica nel suo genere, dove spazio, natura e potenziale si incontrano.

PER INFORMAZIONI O PER FISSARE UNA VISITA CHIAMARE IL NUMERO: 051/4071883

Mostra tutto

Nelle vicinanze

Trasporto pubblico Trasporto pubblico
stazione di San Lazzaro di Savena
stazione di San Lazzaro di Savena
850 m
Bologna Roveri
Bologna Roveri
1,6 Km
Caselle Chiesa
Caselle Chiesa
380 m
Villanova Chiesa
Villanova Chiesa
700 m
Ca' dell'Orbo
Ca' dell'Orbo
2,1 Km
Ricariche auto elettriche Ricariche auto elettriche
Living Place - Gruppo Jsh
630 m
Stazione SAN LAZZARO DI SAVENA | ENELX
930 m
Villanova Tosarelli | EnelX
1,4 Km
San Lazzaro di Savena Jussi | EnelX
2,0 Km
Parco 2 Agosto
2,1 Km
Scuole Scuole
Scuola elementare Angela Fresu
1,4 Km
Ettore Majorana
1,6 Km
Scuole
1,7 Km
Scuole medie inferiori Rodari-Jussi
2,4 Km
Istituto Comprensivo n. 12
2,7 Km
Farmacia Farmacia
Villanova
1,3 Km
Farmacia della Cicogna
2,0 Km
Farmacia Due Madonne
2,2 Km
Fossolo 2
2,4 Km
San Pietro
2,4 Km
Ospedali Ospedali
AUSL BO Casa della Salute S.Lazzaro di Savena
2,1 Km
Ospedali
2,4 Km
Villa Silvia
2,4 Km
Infermeria
2,5 Km
Villa Arcobaleno
2,7 Km
Supermercati Supermercati
Extracoop
460 m
Conad
1,9 Km
Coop
1,9 Km
Comet
2,2 Km
Naldi
2,3 Km
Negozi Negozi
Sirmoney Liberamente
480 m
Fiorella Rubino
480 m
Z
490 m
Calzedonia
490 m
Tezenis
490 m
Bar Bar
Titto Gelateria
500 m
La Torteria
510 m
Gustavo
510 m
Fruit Bar
550 m
Giostrà
1,7 Km
Ristoranti Ristoranti
Buona Pausa
470 m
Sano e Delizioso
510 m
Gustavo Italiano
540 m
Sushiko
630 m
Hollywood Diner
1,4 Km
Mostra tutto

Caratteristiche

Rif.:
61146281
Piano:
Su più livelli di 1
Totale piani:
1
Box:
2
Posti auto:
2
Camere da letto:
7
Mostra tutto
Prezzo Prezzo
€ 645.000
Rata mutuo Rata mutuo
€ 3.077 / mese
Spese annue Spese annue
€ 0
Proponi il tuo prezzoProponi il tuo prezzo

Classe Energetica

G
G
G
G
G
G
G
G
G
EP globale non rinnovabile:
301.03 kW h/m² anno
EP globale rinnovabile:
301.03 kW h/m² anno
EP invernale del fabbricato:
EP estiva del fabbricato:
Anno di costruzione:
1940
Riscaldamento:
Autonomo
Tipo impianto:
A radiatori
Tipo alimentazione:
Metano

Prezzo ridotto di €1 (14%%)

Ti interessa visionare l'immobile?

Fissa un appuntamento  Fissa un appuntamento

Richiedi informazioni

Clicca su Leggi per aprire l'informativa
* Questi campi sono obbligatori

Calcola il tuo mutuo

Semplice e senza impegno
Anticipo

( % )
Mutuo

( % )

pochi semplici passi

inserisci i tuoi dati
Questionario completato
Grazie per aver richiesto un appuntamento senza impegno con un nostro Consulente del Credito e Assicurativo.

Hai inserito correttamente tutti i dati necessari e a breve riceverai una e-mail con un link da convalidare per inviare i tuoi dati.
Affiliato
Studio Santa Rita Srl
Via Massarenti, 193/C 40138 Bologna (BO)

Il nostro staff


  • Marta Brunetti
    Coordinatrice

  • Manuel Sorgente
    Collaboratore

  • Pino Tavernise
    Collaboratore

  • Salvatore Tavernise
    Affiliato
Via Massarenti, 193/C 40138 Bologna (BO)
Zona: Bologna-Santa Rita-San Vitale-Massarenti-Larga-Martelli
Mostra su mappa
Orari: Dal lunedì al venerdì 9:00 - 13:00 ; 15:00 - 20:00; sabato 9:00 - 13:00
Affiliato
Studio Santa Rita Srl
Via Massarenti, 193/C 40138 Bologna (BO)

2026 Tecnocasa Franchising S.p.A. - P. IVA 08365160152 - Via Monte Bianco 60/A 20089 Rozzano (MI). Ogni agenzia ha un proprio titolare ed è autonoma. Privacy policy | Policy utilizzo | Cookie policy